Thoughtfully designed by a trusted, well-established builder, this home has been planned for a growing family. It offers a functional layout with five bedrooms, two and a half bathrooms, and a four-car garage - there's plenty of room for everyone to enjoy their own space. Known for quality craftsmanship and on-time delivery, BBS Homes are about to start bringing this home to life, with an anticipated completion time of June 2026.
Every detail has been carefully considered to meet the needs of modern family life. From the expansive floorplan to the premium inclusions, this 302sqm (approx.) home will offer a lifestyle of comfort and convenience in a vibrant, family-friendly community.
The heart of the home is the open-plan kitchen, dining, and family area, designed to bring everyone together. The kitchen will feature stone benchtops, modern appliances, and a walk-in pantry - perfect for preparing everything from quick breakfasts to Sunday roasts. The adjoining dining area flows seamlessly into the open plan living, and from here, sliding doors open onto the alfresco area making it easy to enjoy indoor-outdoor living.
Features you'll love;
• 5 Generous Bedrooms
• Large master suite with his & hers walk-in robes & ensuite
• Powder room
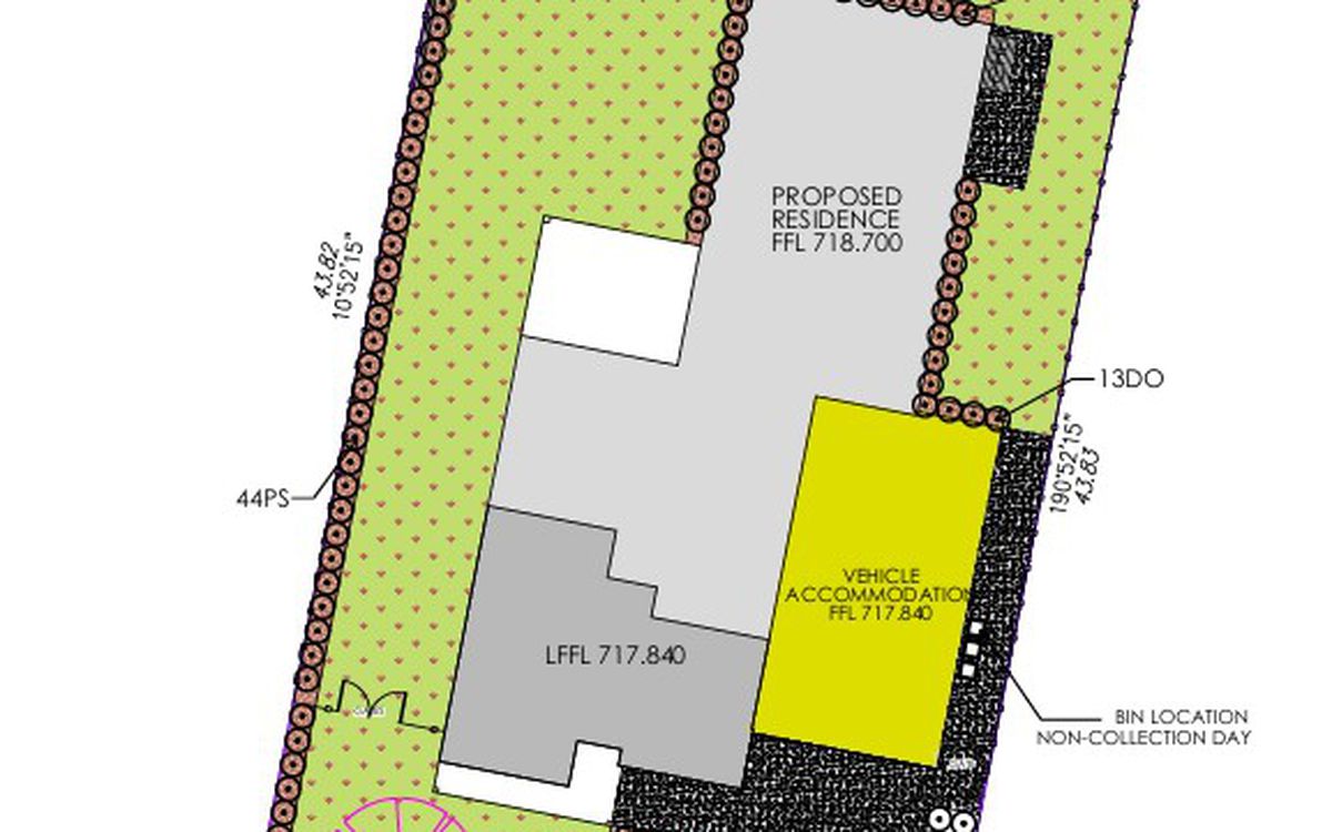
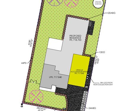
• 4 car garage
• 2.55m ceilings
• Well appointed kitchen with walk-in pantry & 40mm stone benchtop
• Double glazing
• Reverse cycle heating / cooling
• Instant hot water
• Formal lounge, open plan living area & rumpus
• 302sqm home - including porch and garage (approx.)
• 987sqm block
From its thoughtful layout to the abundance of natural light, storage, and family-friendly features, this home has been designed to make daily life easier and more enjoyable. Families will love the generously sized bedrooms, especially the master suite - a perfect retreat for parents. The remaining bedrooms are ideal for children, guests, or even a dedicated home office or hobby space, depending on your needs.
Elm Grove is a recently developed estate in Bungendore - welcome to wider streets, enjoyable recreation areas, and all the services you could need - doctors, dentist, chiropractor, chemist, local schools, the list goes on.
Don't hesitate to contact Sally Hughes from Shoemark Real Estate on 0413 952 297 if you'd like further information on this House and Land Package, or other options BBS Homes have available.
DISCLAIMER
We've gathered our information from sources we deem reliable and have used our best endeavours to ensure it's accuracy, although accept no responsibility and disclaim all liability in respect to any errors or inaccuracies within. We encourage all parties to make their own enquiries to verify the information contained within.













